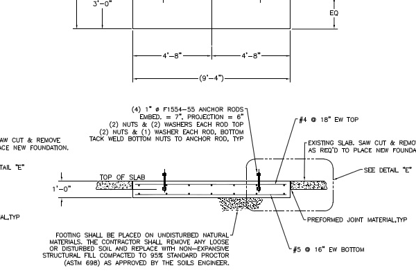
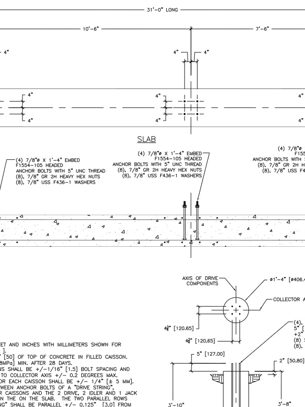
Foundation Design

Detailing, Structural, Industry, Building

Foundation Detailing

Detailing, Structural, Industry, Building

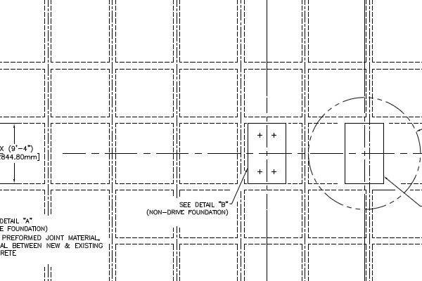
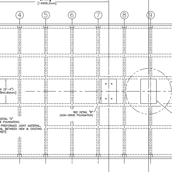
Foundation Layout

Detailing, Structural, Industry

Piping Supports

Steel, Detailing, 3D Models, Structural, Industry, Building, Renewable Energy

Wall Supports

Steel, Detailing, Structural, Industry, Building

Foundations 3

Detailing, Structural, Industry, Building

3D CAD Piping Supports

Steel, Detailing, 3D Models, Structural, Industry, Building, Renewable Energy