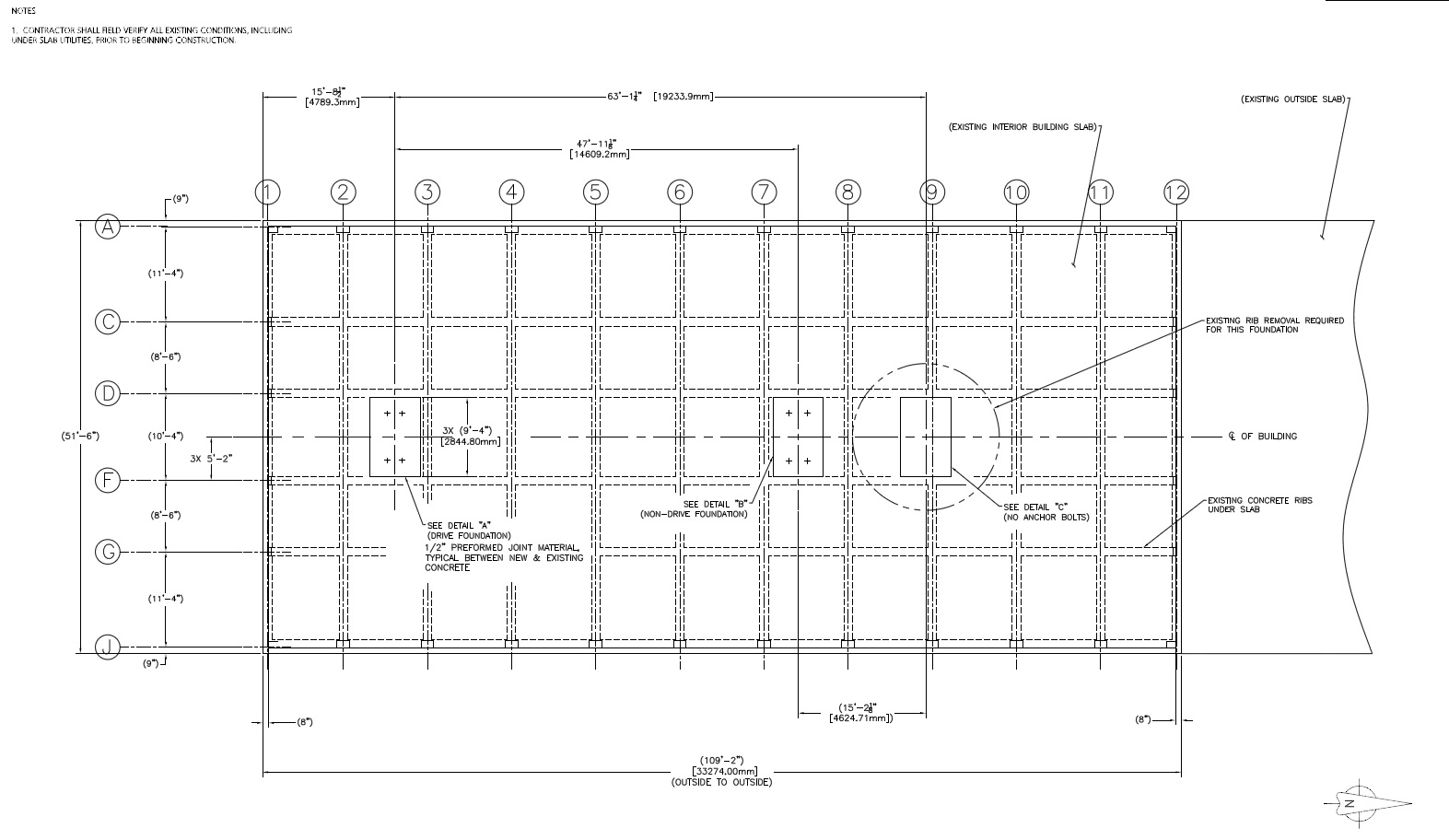
Foundation Layout

Foundation Layout

Date

24 July 2016

Categories

Detailing, Structural, Industry