Control Cabinets

Electrical, Space, Communications

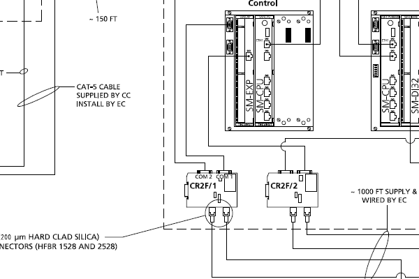
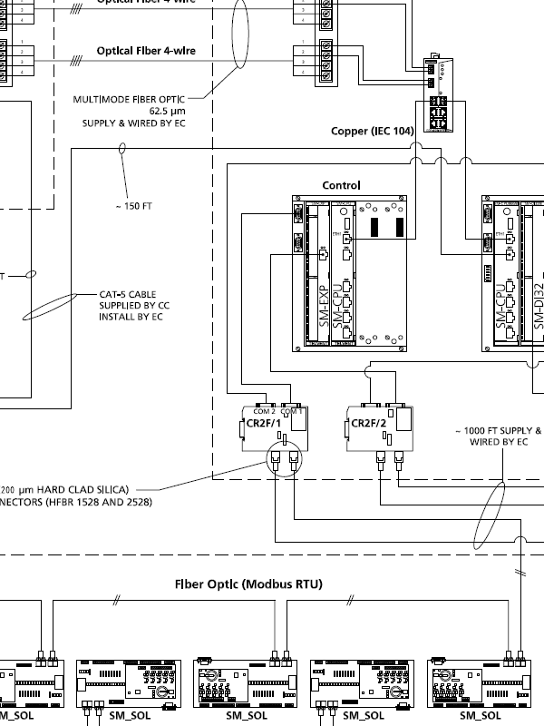
Control Sys Architecture

Electrical, Detailing, Space, Communications

Diode Bracket

Solar, Electrical, 3D Models, Space, Industry, Communications, Detailing, Test Sockets, Renewable Energy

PLC Cabinet

Electrical, Space, Industry, Communications, Renewable Energy