Fiber Optic Design

Fiber Optic Design

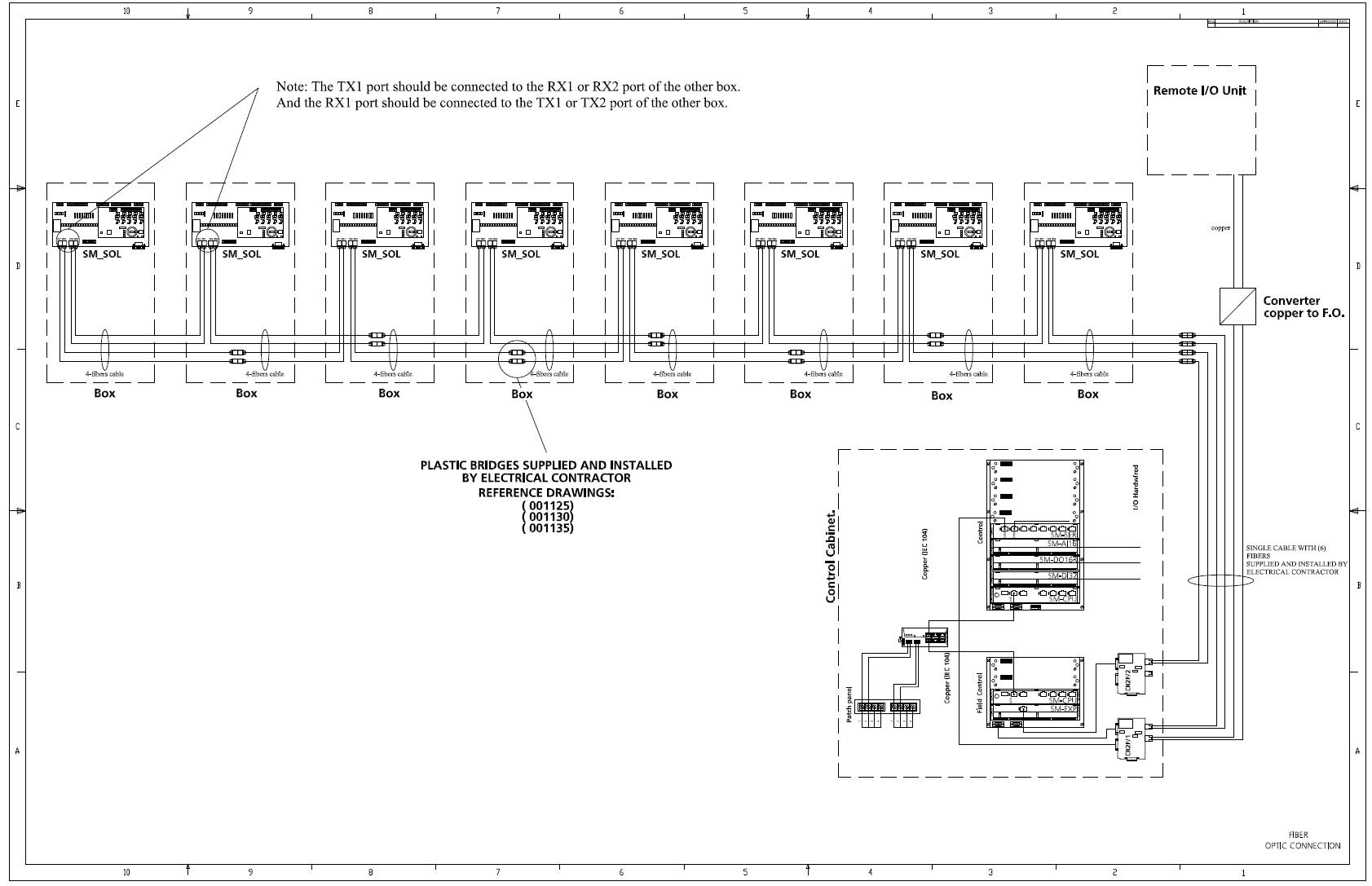
Fiber Optics

Date

24 July 2016

Categories

Electrical, Space, Industry, Communications, Renewable Energy