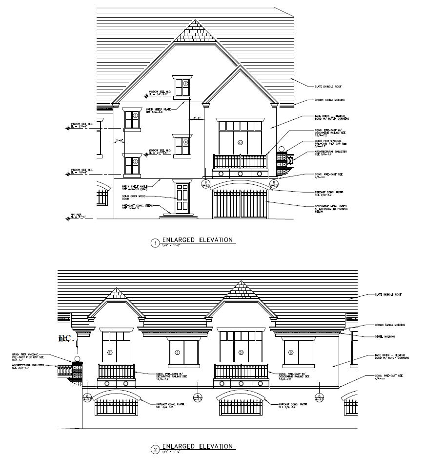
Residential Elevation 2

Residential Elevation 2

Date

24 July 2016

Categories

Architectural, Building, Detailing